1 / 5
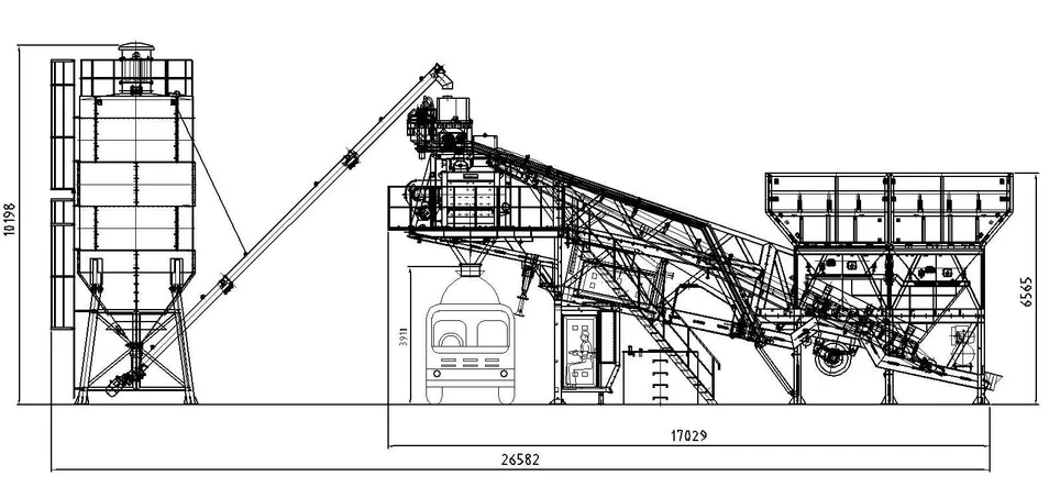
YHZS series mobile concrete mixing plant is a new type of mobile concrete mixing plant designed by applying advanced technology and scientific research achievements. It integrates material collection, electronic weighing, lifting, and mixing on a single trailer chassis. This compact design allows for immediate use upon arrival at a site, making it exceptionally convenient to move and easy to install. It is ideal for mobile construction sites such as roads, bridges, dams, and airports.
| Model | YHZS50 | YHZS75 | YHZS100 |
|---|---|---|---|
| Output | 50m³/h | 75m³/h | 100m³/h |
| Mixer | JS1000 | JS1500 | JS2000 |
| Mixer Power | 2*18.5kW | 2*30kW | 2*37kW |
| Max Aggregate Size | 60/40 mm | 60/40 mm | 60/40 mm |
| Discharge Capacity | 1000L | 1500L | 2000L |
| Aggregate Bin | 4*6m³ | 4*6m³ | 4*6m³ |
| Discharge Height | 3.8m | 3.8m | 3.8m |
| Installed Capacity | 66kW | 98kW | 115kW |

