Mobile Concrete Plant Easy Transport Flexible Modular Design Mobile Max 100m3/H Concrete Mixing Batching Plant

Customization: Available
After-sales Service: Provide on-Site Service by Technicians
Warranty: 1year

Product Description

Basic Info. Overview
Model NO.
YHZS
Type
Concrete Mixing Plant
Shotcrete Type
Semi-Dry
Process
Welded Molding Machine
Structure
Spiral Type
Productivity
90m³/h
Certification
ISO9001: 2000, CE
Condition
New
Feed Volume
2400L
Discharge Volume
1500L
Control
Central Computer Control
Unloading Height
3.8m
Product Description
Mobile Concrete Plant
Mobile Concrete Batching Plant
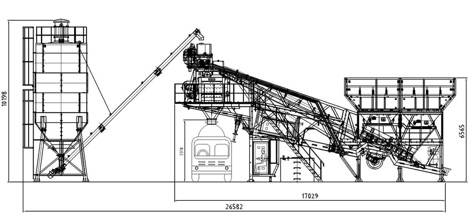
YHZS series mobile concrete mixing plant is a new type of mobile concrete mixing plant designed by applying advanced technology and scientific research achievements. It integrates material collection, electronic weighing, lifting, and mixing on a trailer chassis. It can be used as soon as it is pulled and stopped, which is convenient to move and easy to install. It is very suitable for all kinds of mobile construction sites such as roads, bridges, dams, and airports.
Key Features & Applications
Specification Detail
Mobile System

Main Advantages:

  • Strong mobility: Easily transferred to different construction sites to respond to project demands quickly.
  • Convenient installation: Compact structure with a simple installation process, no complex infrastructure required.
  • Accurate measurement: High-precision weighing system for materials ensures stable concrete quality.

Key Configurations: Mixer, Aggregate batching hopper, weighing system, Control room, Belt weighing, Mobile system.

System Overview
Technical Specifications
Model YHZS50 YHZS75 YHZS100
Output50m³/h75m³/h100m³/h
MixerJS1000JS1500JS2000
Mixer Power2*18.5kW2*30kW2*37kW
Max Aggregate Size60/40 mm60/40 mm60/40 mm
Feed Capacity1500L2250L3000L
Discharge Capacity1000L1500L2000L
Aggregate Bin4*6m³4*6m³4*6m³
Discharge Height3.8m3.8m3.8m
Weighing (Aggregate)±2%±2%±2%
Weighing (Cement/Water)±1%±1%±1%
Part A
Part B
Packaging & Shipping
Package Size
1209.00cm * 235.00cm * 239.00cm
Gross Weight
20000.000kg
Transport
Ocean Shipping / Mobile Trailer
Packaging
Factory & Quality Control
Production Line
Quality Assurance
Frequently Asked Questions
Are you a factory or a trading company?
We are a factory and we welcome you to visit our manufacturing facilities.
What are your main advantages?
We have ten years of domestic manufacturing experience and three years of international sales experience to meet diverse project requirements.
How do you ensure product quality?
We operate our own factory with strict quality assurance protocols, offer a one-year warranty, and provide specialized after-sales service.
Are the components used high quality?
Yes, our important electronic components and equipment use advanced domestic and international leading brands.
Can the plant color be customized?
Yes, the color and certain configurations can be customized based on your specific needs.
What is the typical production capacity?
Our standard production capacity is approximately 30 days per piece for high-quality assembly.

Related Products