Eco-Friendly Full Closed Structure Yhzs100 Cement Concrete Mixer Batching Plant

Customization: Available
After-sales Service: One Year After Sale Service
Warranty: One Year

Product Description

Basic Information

Model NO.yhzs100
TypeConcrete Mixer
Shotcrete TypeWet
Machining ProcessHydraulic
StructureCylinder Type
Productivity120m³/h
CertificationISO9001: 2000, CE
ConditionNew
Discharge Height4000mm
HS Code8474310000

Product Description

Video Cover
The mobile cement concrete mixing batch plant has a compact structure and concentrates almost all the processes of concrete production on the trailer unit. The human-machine interface is user-friendly, reliable in performance, and can operate stably in various harsh environments. Double horizontal shaft forced mixer, with strong continuous operation ability, comprehensive mixing trajectory, strong mixing motion, and fast and uniform mixing.
Eco-Friendly Batching Plant

The mobile cement concrete mixing batch plant can be quickly transported to the construction site and assembled in place on site through full hanging, without the need for debugging for construction. High degree of automation, strong maneuverability, simple operation, and good stability.

Product Configuration

Configuration Detail 1
Configuration Detail 2
Component 1
Component 2
Component 3

Technical Specifications

Model YHZS50 YHZS75 YHZS100
Output50m³/h75m³/h100m³/h
MixerJS1000JS1500JS2000
Mixer Power2*18.5kW2*30kW2*37kW
Mixer Discharge Capacity1000L1500L2000L
Discharge Height3.8m3.8m3.8m
Installed Capacity66kW98kW115kW
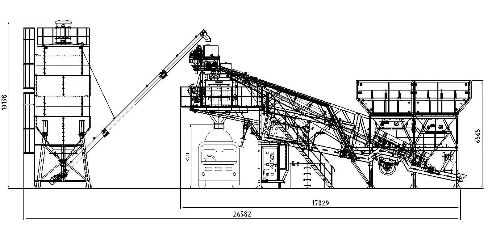
Specification Diagram

Packaging & Shipping

Shipping Details

Production Capability

Factory View 1
Factory View 2

Frequently Asked Questions

Q: Are you a factory or a trading company?
A: We are a professional factory. You are welcome to visit our production facilities at any time.
Q: Do you offer a warranty on your equipment?
A: Yes, we offer a full warranty on all new equipment purchases, along with dedicated after-sales support.
Q: What are the main advantages of your mobile batching plant?
A: Our plants feature a compact structure, high automation, easy maneuverability, and stable performance in harsh environments.
Q: How do you ensure product quality?
A: We maintain our own quality assurance protocols and use advanced domestic and international brands for critical electronic components.
Q: Is the plant easy to transport and install?
A: Absolutely. The design allows for quick transport and on-site assembly through a full-hanging system, significantly reducing engineering time.
Q: Can the configuration be customized?
A: Yes, we provide customization for color, plate thickness, feeding height, and other specific technical requirements.

Related Products