Engineered for reliability, efficiency, and precision, our asphalt mixing plant ensures consistent mix quality, high output, and energy savings. With advanced controls and durable components, it delivers stable performance across diverse environments and reduces maintenance downtime. Ideal for highways, large-scale paving, and municipal projects, it meets the demands of modern infrastructure with robust production capabilities.


| Model | RLB-80 | RLB-120 | RLB-160 | RLB-240 |
|---|---|---|---|---|
| Dimensions (L×W×H)(m) | 32*32*16 | 36*33*16 | 34*30*19 | 45*35*28 |
| Aggregate Accuracy | ±0.5% | ±0.5% | ±0.5% | ±0.5% |
| Asphalt Accuracy | ±0.2% | ±0.2% | ±0.2% | ±0.2% |
| Drum Size (m) | Ø1.7×6.3 | Ø1.92×8 | Ø1.98×9.8 | Ø2.5×9 |
| Mixer Capacity (kg) | 1000 | 1500 | 2000 | 3000 |
| Total Power (kw) | 240 | 370 | 420 | 548 |
| Rated Output (t/h) | 80 | 120 | 160 | 180-240 |
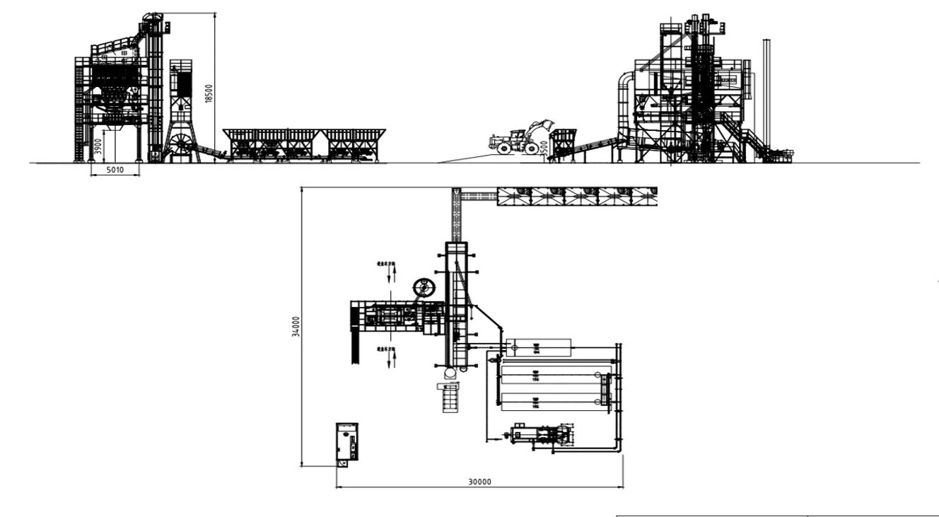
Detailed CAD drawings and dimensional diagrams are available upon inquiry. Our engineering team can provide tailored designs to meet specific project requirements.
Our asphalt batching plants meet CE and ISO standards, ensuring safety and environmental compliance. Our RLB series plants are delivering exceptional performance in Laos, Ethiopia, Ghana, and Tanzania, supporting massive infrastructure demands with high-quality asphalt production.




