Engineered for reliability, efficiency, and precision, our asphalt mixing plant ensures consistent mix quality, high output, and energy savings. With advanced controls and durable components, it delivers stable performance across diverse environments and reduces maintenance downtime. Ideal for highways, large-scale paving, and municipal projects, it meets the demands of modern infrastructure with robust production capabilities.


| Model | RLB-80 | RLB-120 | RLB-160 | RLB-240 |
|---|---|---|---|---|
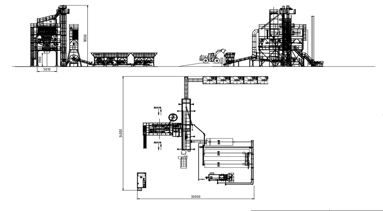
| Size (L×W×H)(m) | 32*32*16 | 36*33*16 | 34*30*19 | 45*35*28 |
| Agg. Accuracy | 1000kg±0.5% | 1500kg±0.5% | 2000kg±0.5% | 3000kg±0.5% |
| Asphalt Accuracy | 100kg±0.2% | 150kg±0.2% | 200kg±0.2% | 300kg±0.2% |
| Drum size (m) | Ø1.7×6.3 | Ø1.92×8 | Ø1.98×9.8 | Ø2.5×9 |
| Mixer capacity(kg) | 1000 | 1500 | 2000 | 3000 |
| Total power(kw) | 240 | 370 | 420 | 548 |
| Rated output(t/h) | 80 | 120 | 160 | 180-240 |



Detailed CAD drawings and dimensional diagrams are available upon inquiry. Our engineering team can provide tailored designs to meet specific project requirements.
Our asphalt batching plants are rigorously tested and certified to meet the highest international standards. The CE Certification ensures compliance with European safety and environmental regulations, while ISO Certification guarantees consistent quality management and operational excellence.


Our RLB series asphalt batching plants are delivering exceptional performance worldwide. In Laos and Ethiopia, the RLB-160 model supports efficient road construction with its compact design. In Ghana and Tanzania, the higher-capacity RLB-240 plant meets growing infrastructure demands, ensuring durable and high-quality asphalt production.


