80t /Modular Assembly for Scalability/Asphalt Mixing Plant / Asphalt Batching Plant

Customization: Available
After-sales Service: Provided
Warranty: Provided

Product Description

Basic Information

Model NO.:RLB80
Type:Asphalt Mixing Plant
Object:Asphalt Concrete Pavement
Moving Type:Fixed & Mobile
Mixing Method:Continuous Drum
Automatic Grade:Automatic
Product Capacity:40~400t/h
Certification:ISO9001: 2000, CE
Condition:New
Technical Support:Provided

Product Overview

Asphalt Mixing Plant

Engineered for reliability, efficiency, and precision, our asphalt mixing plant ensures consistent mix quality, high output, and energy savings. With advanced controls and durable components, it delivers stable performance across diverse environments and reduces maintenance downtime. Ideal for highways, large-scale paving, and municipal projects, it meets the demands of modern infrastructure with robust production capabilities.

Applications

1. Highway & Urban Road Construction
2. Airport & Port Projects
3. Infrastructure Development
4. Industrial Parks Surface Paving
5. Road Maintenance & Repair

Key Configurations

1. Twin-shaft or Drum-type Mixer
2. High-efficiency Burner System
3. Energy-efficient Drying Drum
4. Fully Automated PLC Control
5. Multi-stage Dust Collection
Application View
Configuration View

Technical Specifications

Model RLB-80 RLB-120 RLB-160 RLB-240
Dimensions (L×W×H)(m) 32*32*16 36*33*16 34*30*19 45*35*28
Aggregate Accuracy ±0.5% ±0.5% ±0.5% ±0.5%
Asphalt Accuracy ±0.2% ±0.2% ±0.2% ±0.2%
Mixer Capacity (kg) 1000 1500 2000 3000
Rated Output (t/h) 80 120 160 180-240
Total Power (kw) 240 370 420 548
Plant View 1
Plant View 2
Plant View 3

Certified Quality & Design

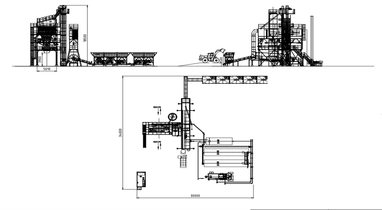
Detailed CAD drawings and dimensional diagrams are available upon inquiry. Our engineering team provides tailored designs to meet specific project requirements. Our plants are CE and ISO certified, ensuring compliance with global safety and environmental regulations.

Technical Drawing
Certification 1
Certification 2

Global Project Success

Global Projects

Our RLB series asphalt batching plants are delivering exceptional performance worldwide. From the RLB-160 models in Laos and Ethiopia to the high-capacity RLB-240 plants in Ghana and Tanzania, our equipment supports critical infrastructure growth with durable and high-quality asphalt production.

Frequently Asked Questions

What is the production capacity range of the RLB series?
The RLB series offers a wide range of production capacities, typically from 40t/h to 400t/h, catering to both small municipal repairs and large-scale highway projects.
What certifications do these asphalt plants hold?
All our asphalt mixing plants are rigorously tested and hold ISO9001:2000 and CE certifications, ensuring they meet international quality and safety standards.
Is the control system fully automated?
Yes, the plants feature a fully automated PLC or SCADA-based control system with real-time diagnostics and remote monitoring capabilities for precise operation.
How does the plant handle environmental emissions?
Our plants are equipped with multi-stage dust collection systems (baghouse or cyclone) and high-efficiency burners to minimize emissions and meet environmental regulations.
Can the plant be customized for specific project needs?
Absolutely. Our engineering team can provide tailored CAD drawings and configurations, including different mixer types and feeding systems, to match your site requirements.
What fuel types can the burner system use?
The high-performance burner system is designed for versatility and is compatible with multiple fuel types, including oil, gas, and coal, depending on your local availability.
Gallery 1
Gallery 2
Gallery 3

Related Products