Engineered for reliability, efficiency, and precision, our asphalt mixing plant ensures consistent mix quality, high output, and energy savings. With advanced controls and durable components, it delivers stable performance across diverse environments and reduces maintenance downtime. Ideal for highways, large-scale paving, and municipal projects, it meets the demands of modern infrastructure with robust production capabilities.
✔ Highway & Urban Road: Expressways and city streets.
✔ Airport & Port Projects: Runways, docks, and logistics zones.
✔ Infrastructure: Bridges, tunnels, and interchanges.
✔ Industrial Parks: Surface paving for factory zones.
✔ Maintenance: Road resurfacing and patch repairs.
🔹 Mixer Unit: Twin-shaft or drum-type for homogeneous output.
🔹 Burner System: High-efficiency, low-emission multi-fuel burner.
🔹 Drying Drum: Advanced heat exchange and dust control.
🔹 Control System: Fully automated PLC/SCADA with remote monitoring.
🔹 Dust Collection: Multi-stage filtration to meet environmental regulations.
| Model | RLB-80 | RLB-120 | RLB-160 | RLB-240 |
|---|---|---|---|---|
| Dimensions (L×W×H)(m) | 32*32*16 | 36*33*16 | 34*30*19 | 45*35*28 |
| Aggregate Accuracy | ±0.5% | ±0.5% | ±0.5% | ±0.5% |
| Cement Accuracy | ±0.3% | ±0.3% | ±0.3% | ±0.3% |
| Asphalt Accuracy | ±0.2% | ±0.2% | ±0.2% | ±0.2% |
| Drum size (m) | Ø1.7×6.3 | Ø1.92×8 | Ø1.98×9.8 | Ø2.5×9 |
| Mixer capacity (kg) | 1000 | 1500 | 2000 | 3000 |
| Total power (kw) | 240 | 370 | 420 | 548 |
| Rated output (t/h) | 80 | 120 | 160 | 180-240 |




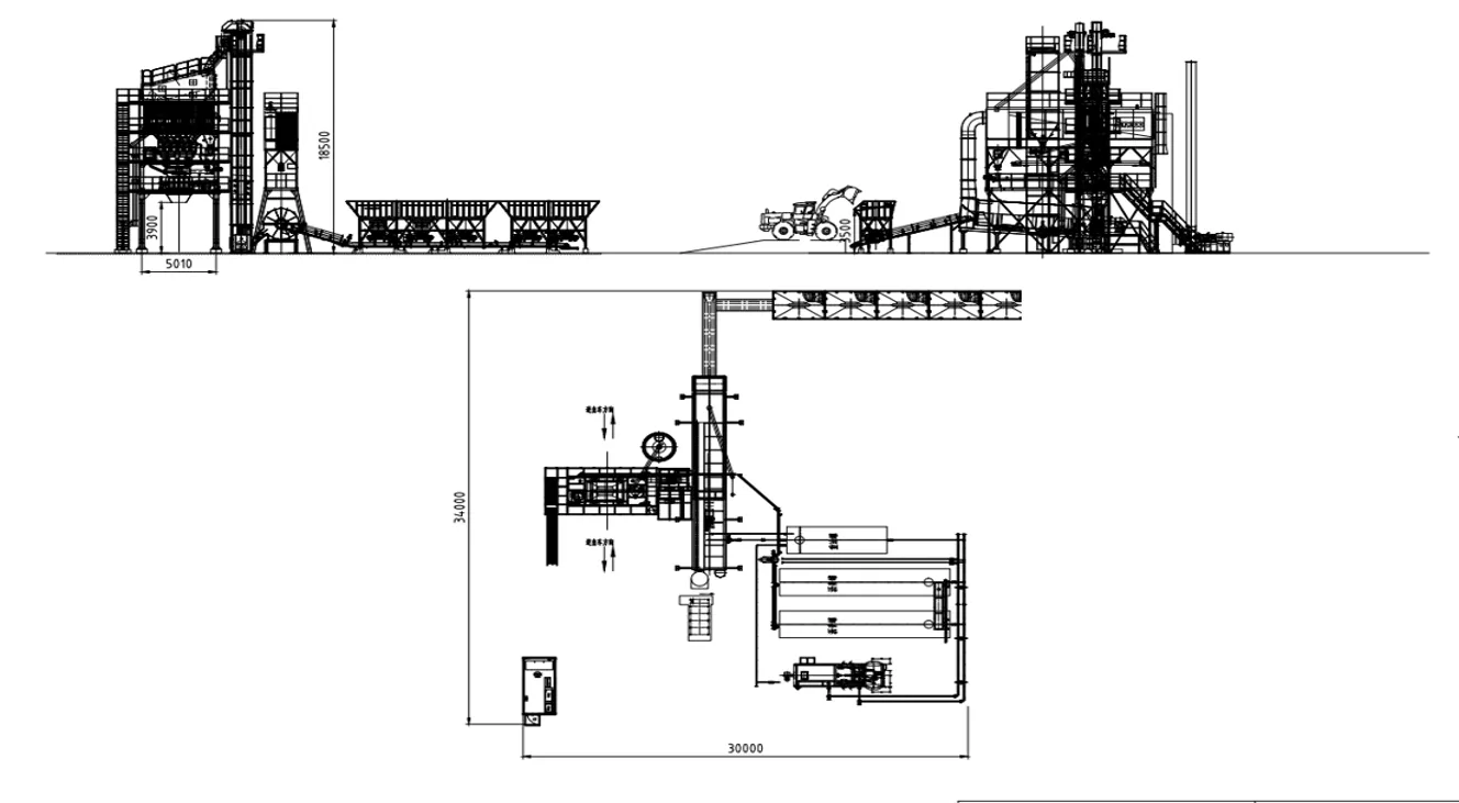
Detailed CAD drawings and dimensional diagrams are available upon inquiry. Our engineering team can provide tailored designs to meet specific project requirements. Our plants are rigorously tested and certified to meet international standards, including CE Certification for European safety and ISO Certification for quality management.


Our asphalt batching plants are delivering exceptional performance worldwide. From the RLB-160 models in Laos and Ethiopia to the high-capacity RLB-240 plants in Ghana and Tanzania, our equipment meets growing infrastructure demands, ensuring durable and high-quality asphalt production across diverse markets.


